VENTA DE SUELO INDUSTRIAL EN POLIGONO DE MONSAO-PORTUGAL

Descripción del inmueble

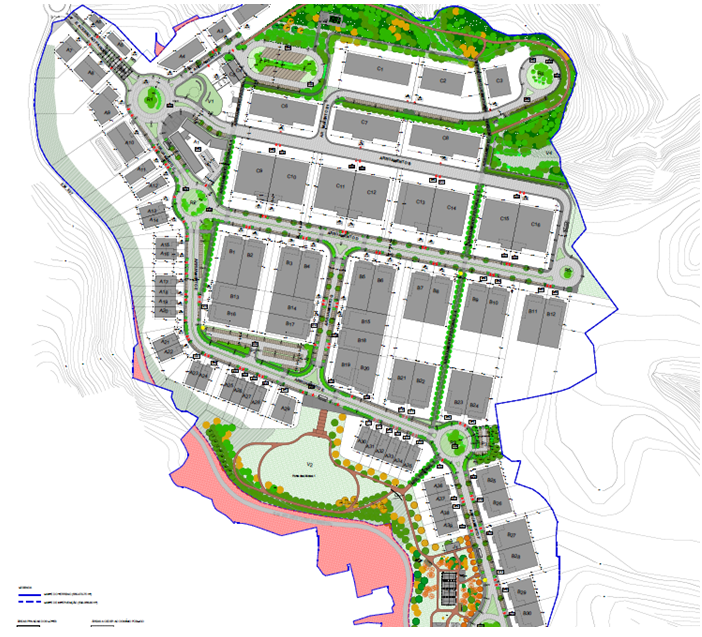
Venta de Suelo Industrial en MONÇAO Portugal, disponemos de varias superficies. A tan solo 50 km de Vigo, a 15 km de la A-52 Y A-55, A menos de 5 km con el Puerto Seco. Disponemos de toda la información. No dude en llamar.

Precios desde 95€ m2.

Galería de imágenes

Déjanos ayudarte